안녕하세요
혼자서 24평 아파트 꾸미기라는 주제로 진행하도록하겠습니다.
1.공사전 준비사항
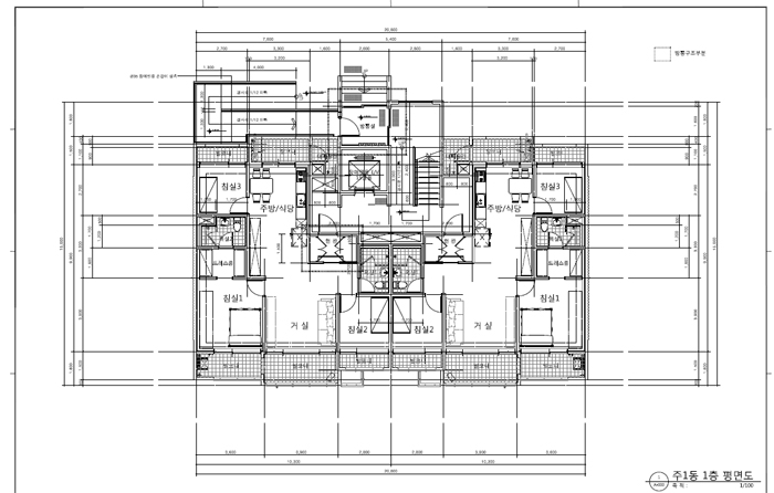
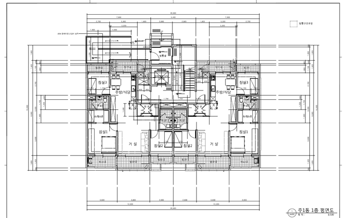
인테리어 준비를 하시는 분은 사전에 건축도면(평면도)이 있어야 보다 쉽게 견적서를 받아
보실수 있거나 자재 산출시 도움이 되기 때문에 하나 하나 실측하는 것은 공사 진행 직전에 하시면
되고요 아니면 시공자들이 직접 실측하는 것이 좋습니다 지금은 견적 보는 경우기 때문에
도면이 필요합니다.


아파트도면은 관리사무실에 가면 도면 자료를 받아 보실수 있습니다.
도면이 준비가 되었다면 각 업체에 도면을 주고 견적을 의뢰하면 되겠습니다.
그럼 견적을 받아볼 업체를 알아보겠습니다. 첫번째 목수작업 및 방문(abs도어또는현관중문)
그리고 샤시작업,싱크대 , 도배, 장판,욕실작업,전기조명,철거작업등이 있으며 각업 체에 견적서를
받아야 공사진행이 됩니다 .각 업체별 공사금액 표를 작성합니다 이부분은 정보방에 표를 만들어
올려 놓도록 하겠습니다 견적 작업과 업체선정이 끝났다면 다음으로 넘어가도록 하겠습니다
2.공사별 계약서 작성 및 공증받기
각 공사별 공사 계약서를 작성해야 하는데요 계약서는 되도록이면 건축주가 직접 작성하는
것을 권해 드립니다. 견적서를 받고 난후 견적서에 나온 내용 중 잘 모르는 경우가 대부분
일꺼라 생가합니다. 그래서 모르는 부분을 체크후 네이버 검색창이나 구글 검색창에 하나하나
검색해 보는 것을 추천드리며 견적서 내용을 다 알려고 하시면 힘들기 때문에 전반적인 공사
내용이나 자재명칭 또는 시공비 정도는 알고 공사진행 하시는 것을 권해 드립니다. 그리고 본인이
직접 계약하는 경우라서 공증을 받는 것이 사 후 a/s며 기타 하자 부분이 처리가 빨리 된다고
보시면 됩니다 . 공증은 서로의 약속이며 법적인 강압이 있다는 것을 서로 잘 알기때문에
공사는 순조롭게 진행 될수 있습니다. 꼭 법으로 한다는 의미는 아니고 조금 압박이 있다는
의미가 되겠습니다.
기타자료들은 정보 자료방에 견적서며 계약서 공증받는법 등의 자료들이 있습니다
참고해 주세요 오늘은 여기 까지 하겠습니다 감사합니다
건축공사나 기타 궁금한 점 있으면 우측 하단에 실시간 채팅 방이 있습니다
메모 남겨 두시면 답변해 드리겟습니다
'주택상가공장 인테리어' 카테고리의 다른 글
| 건축외장재 종류를 알아보자 (0) | 2019.08.03 |
|---|---|
| 셀프인테리어 _21평아파트인테리어 직접하기 (2) | 2019.04.13 |
| 아파트 현관 중문 주문 방법 필독 (1) | 2019.04.03 |
댓글