2021.04.24 - [건축기사 토막지식] - 도면기호 한방에.......EL GL SL GH AD ST PS AD HWS
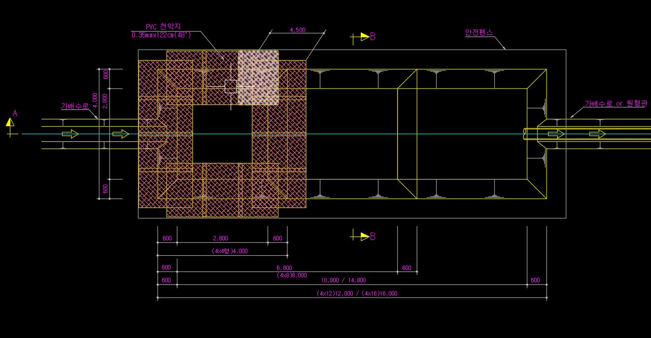
침사란 ? 하폐수 또는 원수중의 비 부패성의 입자성 물질로 비교적 큰 침전속도를 가지는 독립입자를 말한다 비중은 2.65 직경 0.2mm 이상을 말하며 모래와 토사가 대부분이다 펌프나 기타 우수처리 시설의 막힘이 발생할수 있으며 설비손상을 유발한다.
침사지는 토양 침식이나 농경지의 매몰로 인해 직접적인 재해를 일으키거나 하턴등 환경적으로 부정적인 영향을 주는 것을 최소화 하기 위해 토사를 자연적으로 또는 강제적으로 침전 퇴적시킬 목적으로 침사지를 만든다. 침사지는 농경지역에 침식조절용으로 사용되었으나 최근에는 건설현장이나 공사현장에서 토사 유출과 그에 따른 수질문제를 해결하고 경우에 따라 호우에 대비해 수질오염 될 우려가 있는 폐수를 침전시킴으로써 수질을 보전하고 홍수 조절 역활을 하고 있다. 특히 수질보전의 목적으로 건설현장에서는 침사지 설계는 사실상 드물다 그러나 대규모 개발사업에서는 침사지 설계는 필요하며 토사유출 재해를 억제하는 수단으로 공사중 침사지의 설치가 종용되고 있다. 호우시 토사유출의 저감을 목적으로 한다는 점에서 환경보전 목적과 침사지의 개념과는 차이가 있을수 있다.

침전부는 유입된 홍수를 가급적 잔잔하게 하여 토사가 잘 침전하게 하는 역할을 한다. 침전부는 침사지 주위를 도는 회전류를 억제하기 위하여 흐름 방향을 가급적 길게 만든다. 침전부의 수면적은 침전대상 토사입경 침전효율 등에 따라 결정된다.




[건축기사 토막지식] - 지반 정착 공법(Earth Anchor)
지반 정착 공법(Earth Anchor)
지반정착공법 지반정착공법은 버팀대 대신 흙막이벽 배면을 원통형으로 굴착하여 앵커체에 의해 벽을 지탱하는 공법을 말한다 버팀대가 없으므로 굴착공간을 넓게 확보 가능 대형 기계반입가
exchrome88.com
[건축기사 토막지식] - 주심포 양식 과 다포식 양식다포식 양식
'건축기사 토막지식' 카테고리의 다른 글
| sump pit 간단설명 (0) | 2021.05.11 |
|---|---|
| 지반 정착 공법(Earth Anchor) (0) | 2021.05.05 |
| 웰포인트 공법 총정리 (0) | 2021.05.05 |
댓글